Description
Willkommen in dieser beeindruckenden Herrschaftsvilla.
Sie hebt sich durch ihre elegante Architektur und grosszügige Raumaufteilung ab. Entdecken Sie die perfekte Symbiose aus rustikalem Charme und opulenter Architektur in Mitten von Neuhausen am Rheinfall.
Die Villa besticht durch ihre freundliche Atmosphäre und an schönen Tagen geniessen Sie den bezaubernden Blick auf den wundervollen Garten bis hin zu den verschneiten Berggipfeln.
Das Anwesen ist vielseitig nutzbar. Das gilt sowohl für das Haus als auch für das Grundstück. Zuerst zum Grundstück: Vom Grundstück können mehrere Teilflächen abgetrennt und bei Bedarf separat überbaut und oder verkauft werden. Gerne können wir diese Optionen mit Ihnen vertieft besprechen.
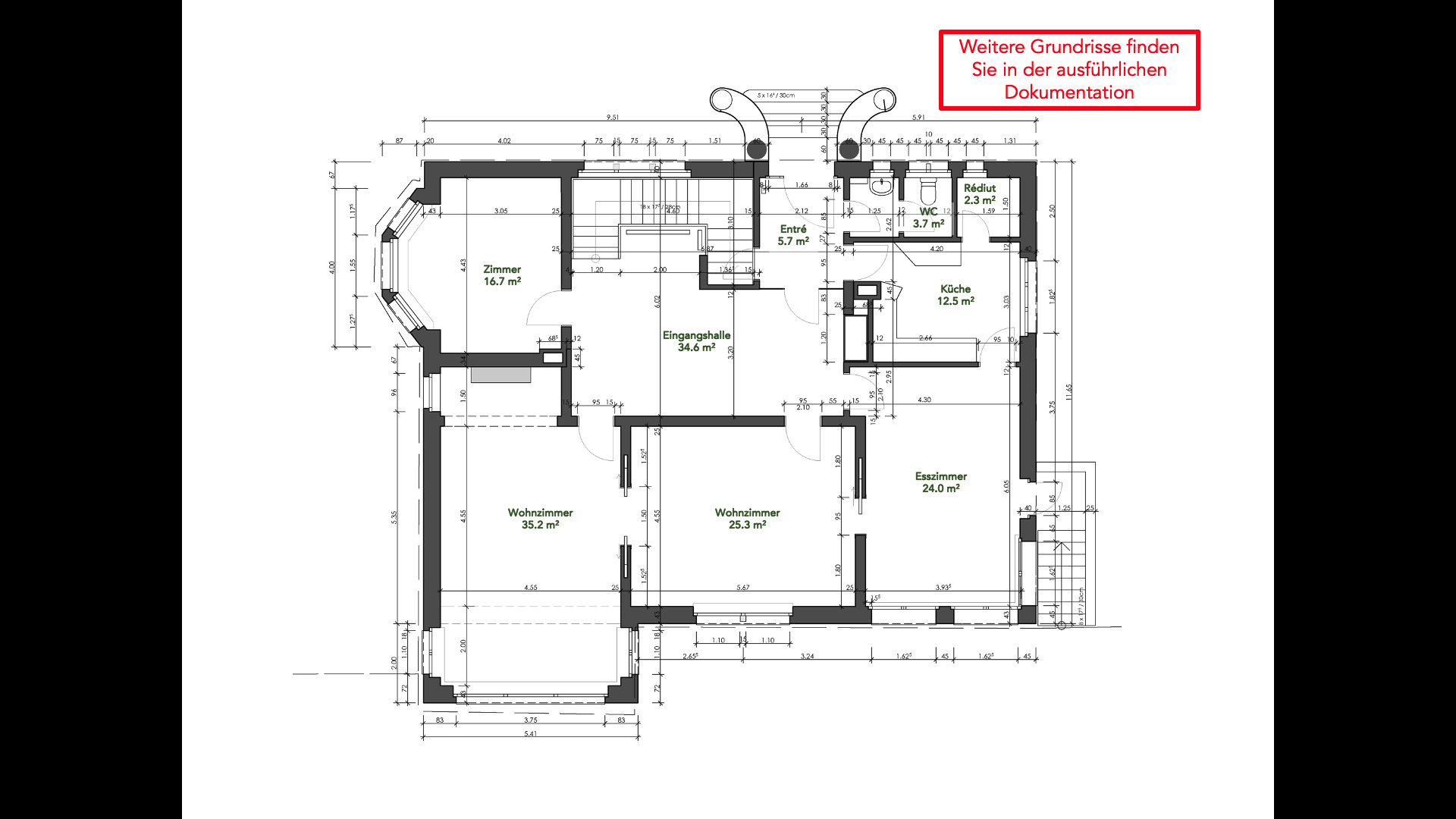
Zur Liegenschaft: Mit insgesamt 11 Zimmern verteilt auf ca. 420 m2 bietet diese Herrschaftsvilla ausreichend Platz für eine grosse Familie, zahlreiche Gäste und/oder einen Firmensitz. Die praktische Raumaufteilung ermöglicht die Kombination von Wohnen und Arbeiten an einem Ort. Die Zimmer sind geschmackvoll gestaltet und mit rustikalen Materialien ausgestattet, die den Charme und die Raffinesse des Anwesens unterstreichen. Die hohen Räume (3.5 m) verleihen dabei ein ganz besonderes Raumgefühl.
Die Liegenschaft ist gut unterhalten. Dennoch warten einige Bereiche auf eine Verjüngungskur. Nutzen Sie die Gelegenheit und gestalten Sie das Haus nach Ihren persönlichen Wünschen und Bedürfnissen und machen Sie die Villa Schönegg zu IHREM Zuhause.
Diese Herrschaftsvilla vereint Tradition, Komfort und eine traumhafte Lage – der perfekte Rückzugsort für alle, die das Besondere suchen.
Sie hebt sich durch ihre elegante Architektur und grosszügige Raumaufteilung ab. Entdecken Sie die perfekte Symbiose aus rustikalem Charme und opulenter Architektur in Mitten von Neuhausen am Rheinfall.
Die Villa besticht durch ihre freundliche Atmosphäre und an schönen Tagen geniessen Sie den bezaubernden Blick auf den wundervollen Garten bis hin zu den verschneiten Berggipfeln.
Das Anwesen ist vielseitig nutzbar. Das gilt sowohl für das Haus als auch für das Grundstück. Zuerst zum Grundstück: Vom Grundstück können mehrere Teilflächen abgetrennt und bei Bedarf separat überbaut und oder verkauft werden. Gerne können wir diese Optionen mit Ihnen vertieft besprechen.
Zur Liegenschaft: Mit insgesamt 11 Zimmern verteilt auf ca. 420 m2 bietet diese Herrschaftsvilla ausreichend Platz für eine grosse Familie, zahlreiche Gäste und/oder einen Firmensitz. Die praktische Raumaufteilung ermöglicht die Kombination von Wohnen und Arbeiten an einem Ort. Die Zimmer sind geschmackvoll gestaltet und mit rustikalen Materialien ausgestattet, die den Charme und die Raffinesse des Anwesens unterstreichen. Die hohen Räume (3.5 m) verleihen dabei ein ganz besonderes Raumgefühl.
Die Liegenschaft ist gut unterhalten. Dennoch warten einige Bereiche auf eine Verjüngungskur. Nutzen Sie die Gelegenheit und gestalten Sie das Haus nach Ihren persönlichen Wünschen und Bedürfnissen und machen Sie die Villa Schönegg zu IHREM Zuhause.
Diese Herrschaftsvilla vereint Tradition, Komfort und eine traumhafte Lage – der perfekte Rückzugsort für alle, die das Besondere suchen.














